С фасадом из зеркального стекла, этот блестящий крошечный дом великолепно гармонирует с окружающей средой…
…и предлагает все необходимые удобства, встроенные в компактное жилище площадью 16 кв. метров.
Спроектированный и изготовленный в Эстонии, он предназначен для использования в качестве гостиничних номеров и домиков для отдыха. Небольшой размер позволяет легко установить его в любой точке страны без необходимости получения разрешения на строительство. В каждом из таких жилых блоков можно разместить от двух до трех человек.

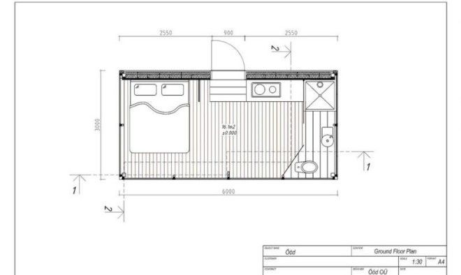
В изготовленном в основном из стали, стеклопакетов и термически обработанного дерева доме ÖÖD студийная планировка с большой кроватью, мини-кухней, гостиной и санузлом.
Встроенная домашняя автоматика регулирует отопление пола и светодиодное освещение. Домовладельцам нужно всего лишь подключить его к интернет-кабелю, воде, канализации и электроснабжению, хотя в настоящее время разрабатываются и автономные решения. Тепловой насос LG с обеспечивает отопление и охлаждение помещения.
Установка ÖÖD занимает всего восемь часов. Согласно журналу Nordica Flight Magazine, каждый такой дом стоит 33 тысячи евро (без НДС) и включает в себя изготовленную на заказ эстонскую мебель.